
Qingling Isuzu's VC61 truck has simple design, lightweight, and fuel-efficient as quality. The streamlined shape of the front of the cabin effectively reduces the wind resistance and reduces fuel consumption. The VC61 truck chassis uses a 6U engine model with maximum 380 horsepower, 6x4 drive type and 10 wheels.The interior of the cabin is spacious and comfortable, we focus on reducing fatigue driving.

Qingling Isuzu GIGA VC61 truck has simple design , lightweight and fuel-efficient as quality. Control the width of the front of the cabin, optimize the wind resistance flow direction of the front corners of the vehicle, and adopt a streamlined shape to reduce the wind resistance to the side of the rear body, obtain the best aerodynamic perfromance, and help improve fuel consumption.
The VC61 truck uses a 6U engine model with maximum 380 horsepower, 6x4 drive type and 10 wheels. The use of a high-quality ZF gearbox, a high-torque engine with a 8 speed transmission and a medium-speed ratio rear axle make the engine always in the most economical speed range. That reduces vehicle fuel consumption.
Pursue the fuel consumption perfromance of the practical speed with high frequency of use, from supercharging to cooling, fuel injection, and the pursuit of maximizing the reduction of fuel costs. In order to adapt to different regions and different loads, a variety of speed ratios are provided for customers to choose.
Suitable cabin, excellent aerodynamic perfromance, the width of the front of the cabin, optimize the wind resistance flow direction at the front corners of the vehicle, adopt a streamlined shape to reduce the wind resistance to the rear body side, obtain the best aerodynamic perfromance, and help improve fuel consumption .
The interior of the cabin is spacious, so the drivers and passengers can easily stand upright in the sleeper, and the lounge can sit without meeting their heads.
A high degree of integration of comfort and efficiency, focusing on reducing fatigue driving.



| Vehicle Model | QL5330GXFW2QDZY | |
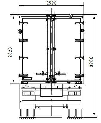
| Vehicle Dimensions and Parameters | Overall Dimension(L x W x H) | 8510×2590×3980mm |
| Wheelbase: | 3985+1370mm | |
| Front Wheel Distance: | 2065mm | |
| Rear Wheel Distance: | 1855/1855mm | |
| Front/Rear Suspension | 1370/1740mm | |
| Weights and Capacities | Curb Weight: | 9260kg |
| GVW: | 33000kg | |
| Axle Loads: | 7000/26000(Two-axis group) | |
| Engine | Engine Model: | 6UZ1-TCG50 |
| Max output: | 279Kw | |
| Displacement: | 15681ml | |
| Horsepower: | 380PS | |
| Exhaust Gas Treatment Technology: | SCR | |
| Cabin | Number of Seats: | 2 |
| Cabin type | Standard Roof One Bed | |
| Chassis | Drive Type: | 6x4 |
| Tires: | 11(Including Spare Tire) | |
| Fuel tank | Capacity | 400L |
| Configurations | 1 | Power Steering System |
| 2 | Air Conditioning | |
| 3 | ABS | |
| 4 | Tubeless Tire | |
| 5 | Retro-Reflective Marking | |
| 6 | Free Maintenance Battery | |
| 7 | Central Lock | |
| 8 | Power Window | |
| 9 | Driving Data Recorder | |
| 10 | Widened Bumper | |
| Box Dimension | External dimension(L x W x H) | 6320×2590×2620mm |
| Inner Dimension(L x W x H) | 6140×2410×2440mm | |
| Thickness | 90mm for all sides | |
Hot Tags: qingling giga vc61 6x4 medical waste transport truck, suppliers, wholesale, buy, price, discount, quotation
←No Information